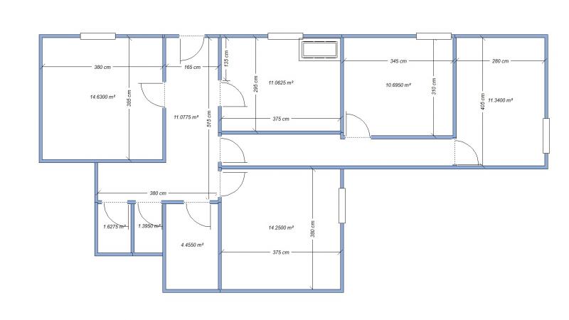
Plan de masse avec les dimensions des pièces